ตามกระทู้นี้
http://pantip.com/topic/31172592 พอดีผมใส่ภาพประกอบผิดไป เขิลเลยครับ
ขออนุญาตตั้งกระทู้ให้วิจารณ์ใหม่อีกครับ ตามแบบแปลนนี้


บ้านชั้นครึ่ง ออกแบบเป็นตัว U ส้รางบนที่ดินประมาณ 100 ตารางวา
รบกวนพี่ๆน้องๆช่วยกันพิจารณาด้วยครับว่าเหมาะสมหรือไม่ ควรเพิ่มเตืมหรือตัดห้องใดหรือไม่
ส่วนทิศทางการวางตำแหน่งบ้านยังตัดตินใจไม่ได้ว่าจะวางตามแนวยาวหรือแนวตั้ง
ขอบคุณครับ
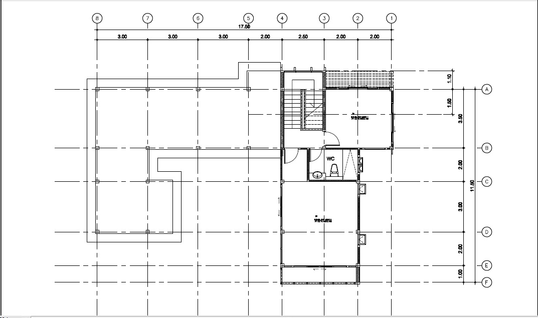
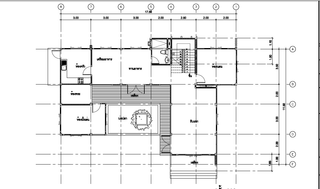
มีแบบบ้านมาให้ช่วยพิจารณาอีกครั้งครับ
ขออนุญาตตั้งกระทู้ให้วิจารณ์ใหม่อีกครับ ตามแบบแปลนนี้
บ้านชั้นครึ่ง ออกแบบเป็นตัว U ส้รางบนที่ดินประมาณ 100 ตารางวา
รบกวนพี่ๆน้องๆช่วยกันพิจารณาด้วยครับว่าเหมาะสมหรือไม่ ควรเพิ่มเตืมหรือตัดห้องใดหรือไม่
ส่วนทิศทางการวางตำแหน่งบ้านยังตัดตินใจไม่ได้ว่าจะวางตามแนวยาวหรือแนวตั้ง
ขอบคุณครับ