สืบเนื่องจากกระทู้นี้ ที่มีการถามความเห็นเพื่อน ๆ สมาชิกไปครับ
https://m.pantip.com/topic/43460190?sc=2d77H7y
ขอบคุณทุก ๆ คอนเมนต์มาก ๆ เลยครับ
ผมขออนุญาตเปิดโพล และรบกวนสมาชิกทุกท่านที่มีประสบการณ์ทั้งทางตรง หรือทางอ้อมกับตัวโครงการ/บริษัทอสังหา/ทำเล/นิติบุคคลและบริการหลังการขาย เข้ามาโหวตหน่อยนะค้าบ
รายละเอียดโครงการที่เป็นท้อป 3 ณ ตอนนี้ครับ
1. The Privacy Parc Taopoon (พฤกษา)
- ติดถนนกรุงเทพ-นนทบุรี
- 500 เมตร จาก MRT เตาปูน (ไม่มี shuttle service)
- ขายแบบ fully-fitted
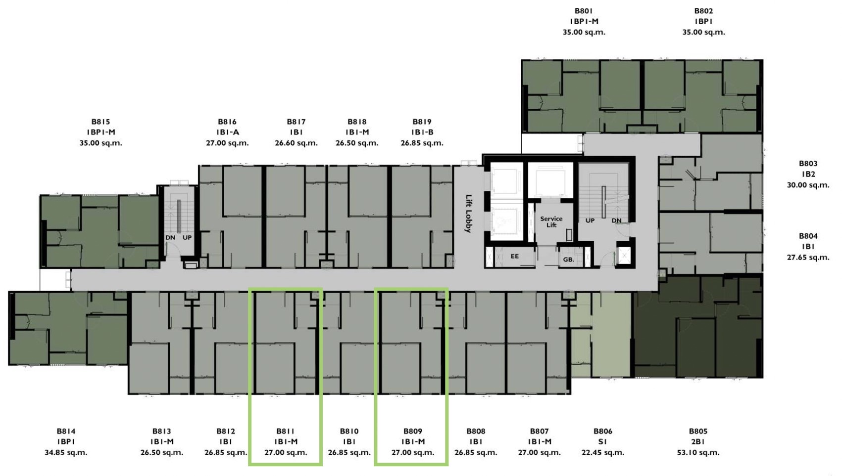
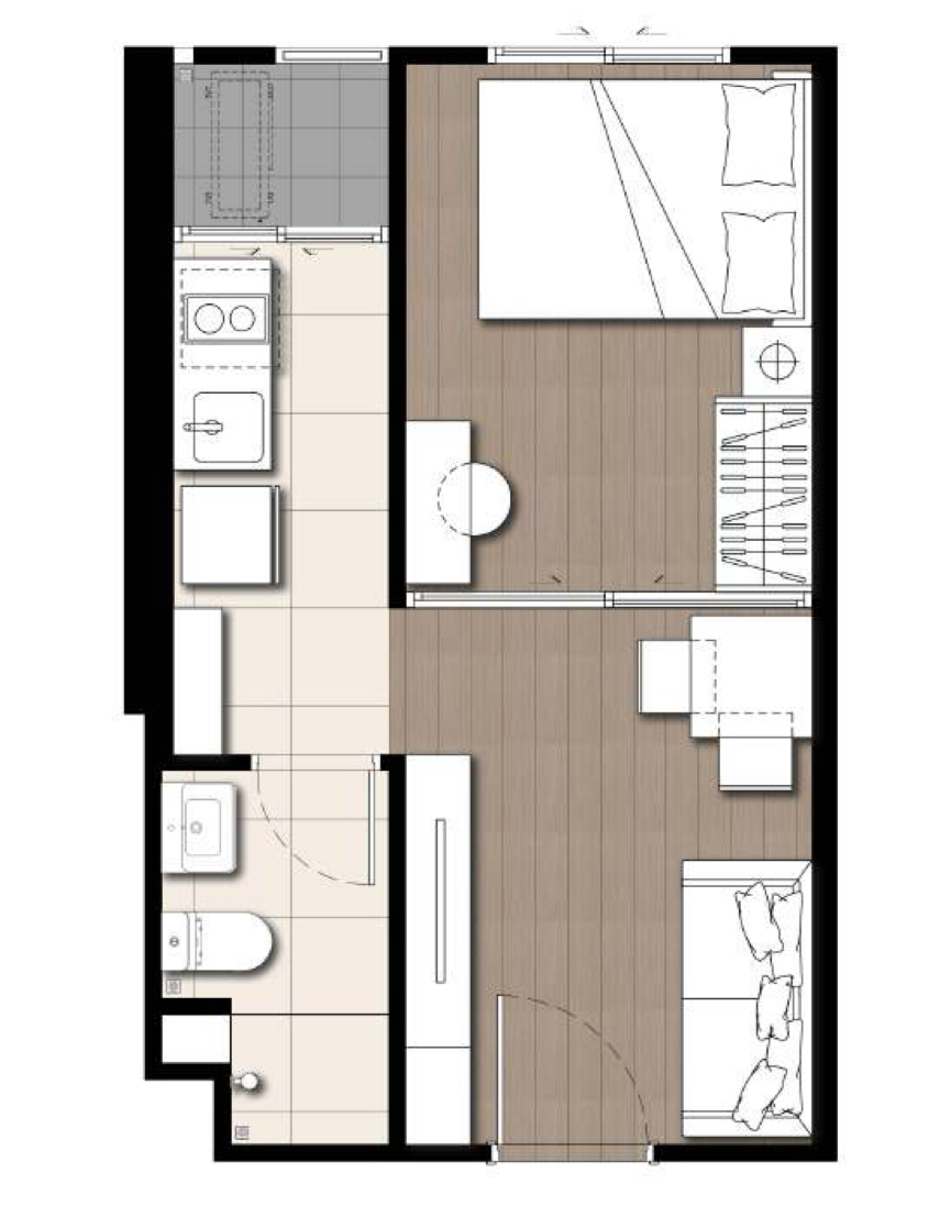
- ห้องที่สามารถซื้อได้ คือ ขนาด 27 ตร.ม. ราคา 2.7 ล้าน
- แปลนห้อง และตำแหน่งที่ตั้งห้อง ชั้น 9 ติดเพื่อนบ้านทั้ง 2 ฝั่ง ครัวแบบปิดติดระเบียง (ไม่มีประตูกั้นให้) หันหน้าทางทิศใต้ (วิว MRT เตาปูน)

2. Modiz Vault Kaset Sripatum (Assetwise)
- ติดถนนบางเขน (เชื่อมพหลโยธิน-วิภาวดี)
- 550 เมตร จาก BTS บางบัว (มี shuttle service)
- ขายแบบ fully furnished มี ชุดครัวบิวท์อิน (อ่างล้างจาน เตาไฟฟ้า เครื่องดูดควัน) ตู้อเนกประสงค์ ตู้วางทีวี ตู้เสื้อผ้า เตียง โซฟา โต๊ะทานข้าว และเก้าอี้ 2 ตัว
- ห้องที่สามารถซื้อได้ คือ ขนาด 28.10 ตร.ม. ราคา 2.9 ล้าน
- แปลนห้อง และตำแหน่งที่ตั้งห้อง ชั้น 7 ติดเพื่อนบ้านทั้ง 2 ฝั่ง ครัวแบบปิดติดระเบียง (มีประตูกั้นมาให้) หันหน้าทางทิศใต้ (วิวม.เกษตร)

3. Place 168 Wutthakat (LPN)
- ติดถนนวุฒากาศ
- 250 เมตร จาก BTS วุฒากาศ (ไม่มี shuttle service)
- ขายแบบ fully furnished มีเตียงขนาด 5 ฟุต โต๊ะทำงาน โซฟา ชั้นวางทีวี และผ้าม่าน 2 ชั้น (โปร่ง และทีบ) หรือ fully fitted และรับส่วนลด 40,000 บาท
- ห้องที่สามารถซื้อได้ คือ ขนาด 30.5 ตร.ม. ราคา 2.5 ล้าน
- แปลนห้อง และตำแหน่งที่ตั้งห้อง ชั้น 12A เยื้องโถงลิฟต์ ติดเพื่อนบ้าน 1 ฝั่ง และอีกฝั่งติดกับทางหนีไฟ ครัวแบบปิดติดระเบียง (ไม่มีประตูกั้นมาให้) หันหน้าทางทิศเหนือ (วิว BTS วุฒากาศ และถนนราชพฤกษ์)
*** ปิดโหวต วันที่ 30 พฤษภาคม พ.ศ.2568 เวลา 09:58:06 น.
รบกวนช่วยโหวตคอนโดที่ชื่นชอบหน่อยค้าบ 🥹
https://m.pantip.com/topic/43460190?sc=2d77H7y
ขอบคุณทุก ๆ คอนเมนต์มาก ๆ เลยครับ
ผมขออนุญาตเปิดโพล และรบกวนสมาชิกทุกท่านที่มีประสบการณ์ทั้งทางตรง หรือทางอ้อมกับตัวโครงการ/บริษัทอสังหา/ทำเล/นิติบุคคลและบริการหลังการขาย เข้ามาโหวตหน่อยนะค้าบ
รายละเอียดโครงการที่เป็นท้อป 3 ณ ตอนนี้ครับ
1. The Privacy Parc Taopoon (พฤกษา)
- ติดถนนกรุงเทพ-นนทบุรี
- 500 เมตร จาก MRT เตาปูน (ไม่มี shuttle service)
- ขายแบบ fully-fitted
- ห้องที่สามารถซื้อได้ คือ ขนาด 27 ตร.ม. ราคา 2.7 ล้าน
- แปลนห้อง และตำแหน่งที่ตั้งห้อง ชั้น 9 ติดเพื่อนบ้านทั้ง 2 ฝั่ง ครัวแบบปิดติดระเบียง (ไม่มีประตูกั้นให้) หันหน้าทางทิศใต้ (วิว MRT เตาปูน)
2. Modiz Vault Kaset Sripatum (Assetwise)
- ติดถนนบางเขน (เชื่อมพหลโยธิน-วิภาวดี)
- 550 เมตร จาก BTS บางบัว (มี shuttle service)
- ขายแบบ fully furnished มี ชุดครัวบิวท์อิน (อ่างล้างจาน เตาไฟฟ้า เครื่องดูดควัน) ตู้อเนกประสงค์ ตู้วางทีวี ตู้เสื้อผ้า เตียง โซฟา โต๊ะทานข้าว และเก้าอี้ 2 ตัว
- ห้องที่สามารถซื้อได้ คือ ขนาด 28.10 ตร.ม. ราคา 2.9 ล้าน
- แปลนห้อง และตำแหน่งที่ตั้งห้อง ชั้น 7 ติดเพื่อนบ้านทั้ง 2 ฝั่ง ครัวแบบปิดติดระเบียง (มีประตูกั้นมาให้) หันหน้าทางทิศใต้ (วิวม.เกษตร)
3. Place 168 Wutthakat (LPN)
- ติดถนนวุฒากาศ
- 250 เมตร จาก BTS วุฒากาศ (ไม่มี shuttle service)
- ขายแบบ fully furnished มีเตียงขนาด 5 ฟุต โต๊ะทำงาน โซฟา ชั้นวางทีวี และผ้าม่าน 2 ชั้น (โปร่ง และทีบ) หรือ fully fitted และรับส่วนลด 40,000 บาท
- ห้องที่สามารถซื้อได้ คือ ขนาด 30.5 ตร.ม. ราคา 2.5 ล้าน
- แปลนห้อง และตำแหน่งที่ตั้งห้อง ชั้น 12A เยื้องโถงลิฟต์ ติดเพื่อนบ้าน 1 ฝั่ง และอีกฝั่งติดกับทางหนีไฟ ครัวแบบปิดติดระเบียง (ไม่มีประตูกั้นมาให้) หันหน้าทางทิศเหนือ (วิว BTS วุฒากาศ และถนนราชพฤกษ์)