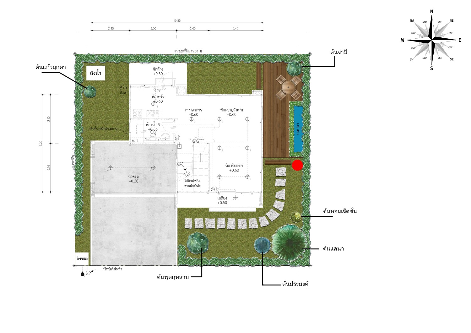
ปรึกษาเรื่องตำแหน่งการลงต้นไม้ตรงจุดสีแดงครับ พื้นที่ตรงระเบียงไม้นั้นมีอยู่ราว ๆ 4 เมตร แต่ตำแหน่งที่ลงมันจะค่อนข้างใกล้แนวรั้ว
( พื้นที่ชิดรั้วด้านขวาไม่ได้ติดกับเพื่อนบ้านนะครับ ) ตำแหน่งตรงนั้นจะอยู่หลังหน้าต่างตรง Living แดดเข้าค่อนข้างแรง ติดผ้าม่านแล้วแต่ยังรู้สึกร้อนอยู่
ตั้งใจจะลงกันเกราซักต้น ไปดูที่ร้านต้นไม้แล้วกยังรู้สึกว่า ต้นกันเกราใบน้อยไป กลัวจะไม่บังแดด ( รูปต้นไม้ในความเห็นที่ 1 ) อยากทราบว่าตำแหน่งตรงนั้นควรลงต้นอะไรดีครับ
ถามเรื่องตำแหน่งการลงต้นไม้ที่พื้นที่ข้างบ้านครับ
( พื้นที่ชิดรั้วด้านขวาไม่ได้ติดกับเพื่อนบ้านนะครับ ) ตำแหน่งตรงนั้นจะอยู่หลังหน้าต่างตรง Living แดดเข้าค่อนข้างแรง ติดผ้าม่านแล้วแต่ยังรู้สึกร้อนอยู่
ตั้งใจจะลงกันเกราซักต้น ไปดูที่ร้านต้นไม้แล้วกยังรู้สึกว่า ต้นกันเกราใบน้อยไป กลัวจะไม่บังแดด ( รูปต้นไม้ในความเห็นที่ 1 ) อยากทราบว่าตำแหน่งตรงนั้นควรลงต้นอะไรดีครับ