กำลังจะปลูกบ้านปีหน้าเดือนสี่ บ้านเป็นสิ่งสำคัญ ต้องการวางแปลนบ้านที่ดี
จะได้ส่งเสริมครอบครัวให้ดีขึ้นและส่งผลต่อคนในครอบครัวที่อยู่อาศัยในแนวทางที่ดี
พยามอ่านศึกษาข้อมูลหลักฮวงจุ้ยต่างๆ แต่ฮวงจุ้ยมีหลายวิชาหลายสำนักมากทำให้สับสน
จน”คิดหาซินแส“มาจัดวางฮวงจุ้ยบ้าน แต่กลัวการผูกดวงที่มีเจ้าบ้านเป็นหลัก
ถ้าวันข้างหน้าเราไม่อยู่คนข้างหลังจะเป็นยังไงต่อไป ไม่รู้
จึงอยาก“รบกวนขอคำแนะนำจากผู้รู้” เกี่ยวกับฮวงจุ้ยการจัดวางห้องและทิศทางต่างๆจ้า
ขอรบกวนเวลาสักนิดให้ช่วยแนะนำและเพิ่มเติมจากประสบการณ์ที่เข้าใจแบบง่ายๆสบายๆ
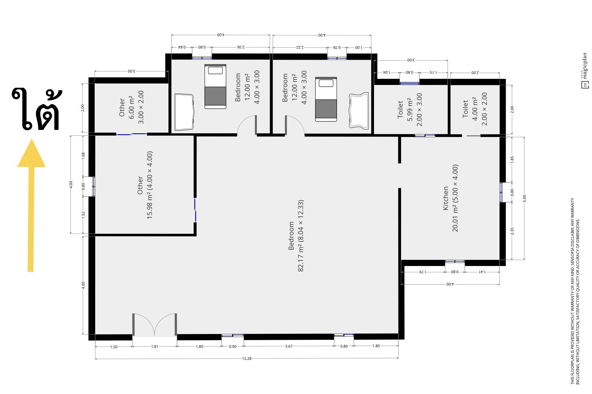
///ยายทวดบอกให้วางห้องตามความเหมาะสม ห้องพระอยู่ทางทิศตะวันออก เราอยูใต้ห้องพระ ลูกอยู่ข้างห้องพระ
ห้องครัวหน้องน้ำแยกออกจากตัวผังบ้าน พื้นที่ว่างเป็นห้องโถง_/\_ขอบคุณล่วงหน้าสำหรับคำชี้แนะ
ที่เป็นที่เก่าคนแก่แถวนั้นบอกเป็นทางผีผ่านมีคนตายย้ายออกบ่อย เราไม่รู้ซื้อและถมเรียบร้อยTTก่อกำแพงรอปลูกแล้ว
-มีเสาไฟ้ฟ้าอยู่ตรงข้ามที่คนล่ะฝั่งถนนมองไปผ่ากลางที่พอดีจ้า
***บ้านหันหน้าทางทิศเหนือ*
!———————————!
! พระ. ลูก. ลูก. ! ห้องน้ำ
! เรา. ! ครัว
! ประตูบ้าน. !
!———————————!
——————————————————————
————————————————>
อันนี้ถนนวิ่งผ่านหน้าบ้าน
<————————————————
__________________________________________________
/เสาไฟฟ้า/
ฮวงจุ้ยบ้าน
จะได้ส่งเสริมครอบครัวให้ดีขึ้นและส่งผลต่อคนในครอบครัวที่อยู่อาศัยในแนวทางที่ดี
พยามอ่านศึกษาข้อมูลหลักฮวงจุ้ยต่างๆ แต่ฮวงจุ้ยมีหลายวิชาหลายสำนักมากทำให้สับสน
จน”คิดหาซินแส“มาจัดวางฮวงจุ้ยบ้าน แต่กลัวการผูกดวงที่มีเจ้าบ้านเป็นหลัก
ถ้าวันข้างหน้าเราไม่อยู่คนข้างหลังจะเป็นยังไงต่อไป ไม่รู้
จึงอยาก“รบกวนขอคำแนะนำจากผู้รู้” เกี่ยวกับฮวงจุ้ยการจัดวางห้องและทิศทางต่างๆจ้า
ขอรบกวนเวลาสักนิดให้ช่วยแนะนำและเพิ่มเติมจากประสบการณ์ที่เข้าใจแบบง่ายๆสบายๆ
///ยายทวดบอกให้วางห้องตามความเหมาะสม ห้องพระอยู่ทางทิศตะวันออก เราอยูใต้ห้องพระ ลูกอยู่ข้างห้องพระ
ห้องครัวหน้องน้ำแยกออกจากตัวผังบ้าน พื้นที่ว่างเป็นห้องโถง_/\_ขอบคุณล่วงหน้าสำหรับคำชี้แนะ
ที่เป็นที่เก่าคนแก่แถวนั้นบอกเป็นทางผีผ่านมีคนตายย้ายออกบ่อย เราไม่รู้ซื้อและถมเรียบร้อยTTก่อกำแพงรอปลูกแล้ว
-มีเสาไฟ้ฟ้าอยู่ตรงข้ามที่คนล่ะฝั่งถนนมองไปผ่ากลางที่พอดีจ้า
***บ้านหันหน้าทางทิศเหนือ*
!———————————!
! พระ. ลูก. ลูก. ! ห้องน้ำ
! เรา. ! ครัว
! ประตูบ้าน. !
!———————————!
——————————————————————
————————————————>
อันนี้ถนนวิ่งผ่านหน้าบ้าน
<————————————————
__________________________________________________
/เสาไฟฟ้า/