ซื้อคอนโดใหม่ต้องเช็คให้ละเอียดกว่าเดิม

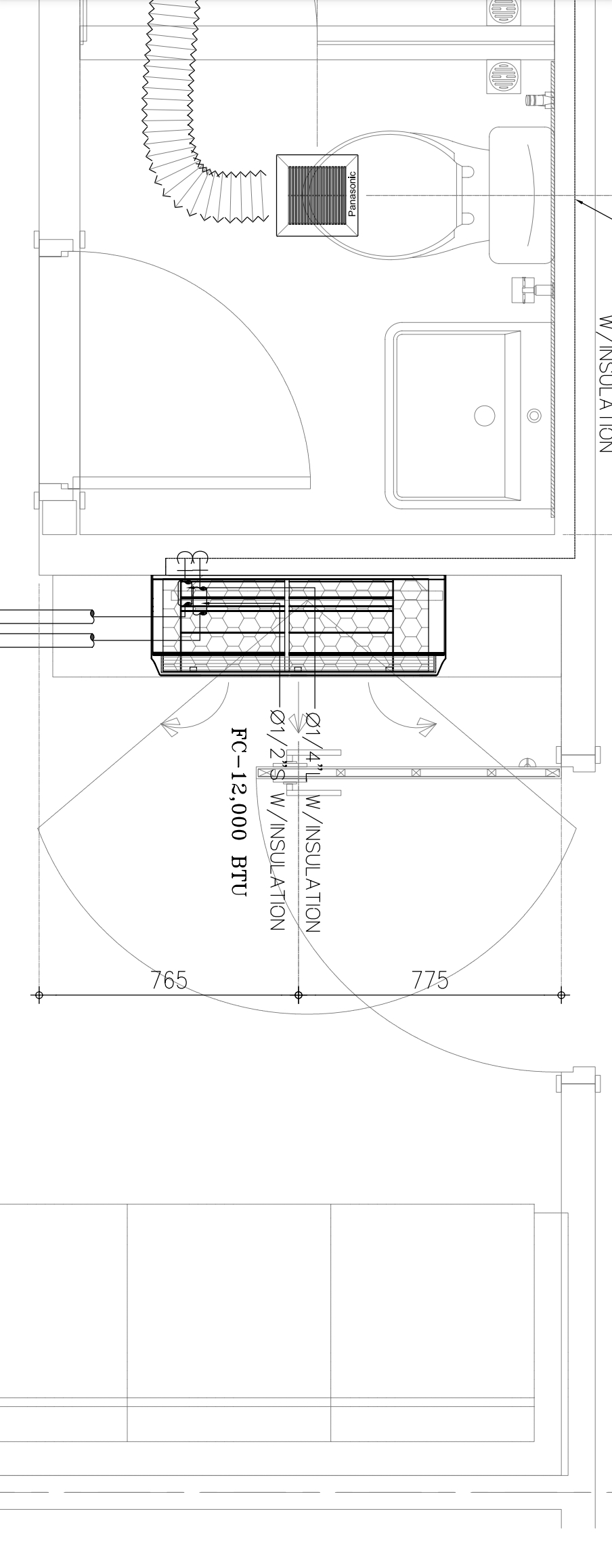
ใครว่าแน่เจอเคสนี้ถึงกับงงง ปกติการซื้อคอนโดมือ 1 ตรวจรับก็ดูแค่พื้นห้องน้ำก๊อกน้ำระบบไฟเรียบร้อยก็น่าจะเพียงพอแล้ว ล่าสุดที่เจอคือซื้อคอนโดมาปัจจุบันอายุ 7 ปีมีแอร์ 13,000 BTU panasonic ที่ผ่านมาแอนนั้นไม่ค่อยเย็นก็ทนใช้มาเรื่อยจนคิดว่าอายุมากขึ้นก็อยากจะเปลี่ยนใหม่เป็นแบบ inverter ศึกษาหาข้อมูลเรื่องตัวเครื่องและขนาดท่อน้ำยาทองแดงเพื่อที่จะหาเครื่องรุ่นใหม่มาใส่ทดแทนของเดิมโดยที่ไม่ต้องเปลี่ยนท่อน้ำยาเพราะท่อทองแดงนั้นถูกร้อยฝังผนังขึ้นบนฝ้าเพดานแบบฝ้าเรียบ พอสั่งเครื่องมาพร้อมติดตั้งถอดเครื่องเก่าออกพบว่าท่อน้ำยาควรเป็นขนาด 2 หุนและ 4 หุนแต่กลับพบว่าท่อที่ออกมาจากผนังกลับเป็นท่อ 3 หุนและถูกเชื่อมต่อให้กลายเป็น 4 หุน จึงไม่สามารถทำการติดตั้งเครื่องใหม่ได้เพราะถ้าไม่เปลี่ยนท่อน้ำยาก่อนเครื่องจะทำงานหนัก ไม่เย็น กินไฟมาก และเสียหายโดยที่ทางผู้ผลิตจะไม่รับประกันสินค้า เราติดต่อกับทางนิติเพื่อขอแบบวิศวกรรมการเดินท่อแอร์ในแบบระบุไว้ชัดเจนว่าเป็นท่อ 2 หุนและ 4 หุน จึงได้ติดต่อกับทางโครงการเพื่อให้รับผิดชอบ ผ่านทาง call center ให้ไปประสานงานผลสุดท้ายหายไป 2 สัปดาห์แจ้งกลับมาว่าไม่รับผิดชอบเนื่องจากคอนโดหมดประกันแล้ว ทำให้นึกถึงว่านี่ขนาดแค่เรื่องแอร์ยังหมกงานขนาดนี้ หากเป็นพวกเหล็กโครงสร้างที่อยู่ตามเสาอาคารมันจะลดขนาดหรือเปล่าไม่พังลงมาก็ไม่รู้เพราะอยู่ในปูน อันนี้หลักฐานชัดๆยังไม่ยอมรับ ที่โครงการมีประมาณ 800 ห้อง ไม่น่าจะเป็นห้องเดียวแน่ๆ



แสดงความคิดเห็น
โปรดศึกษาและยอมรับนโยบายข้อมูลส่วนบุคคลก่อนเริ่มใช้งาน อ่านเพิ่มเติมได้ที่นี่