หน้าแรก
คอมมูนิตี้
ห้อง
แท็ก
คลับ
ห้อง
แก้ไขปักหมุด
ดูทั้งหมด
เกิดข้อผิดพลาดบางอย่าง
ลองใหม่
แท็ก
แก้ไขปักหมุด
ดูเพิ่มเติม
เกิดข้อผิดพลาดบางอย่าง
ลองใหม่
{room_name}
{name}
{description}
กิจกรรม
แลกพอยต์
อื่นๆ
ตั้งกระทู้
เข้าสู่ระบบ / สมัครสมาชิก
เว็บไซต์ในเครือ
Bloggang
Pantown
PantipMarket
Maggang
ติดตามพันทิป
ดาวน์โหลดได้แล้ววันนี้
เกี่ยวกับเรา
กฎ กติกา และมารยาท
คำแนะนำการโพสต์แสดงความเห็น
นโยบายเกี่ยวกับข้อมูลส่วนบุคคล
สิทธิ์การใช้งานของสมาชิก
ติดต่อทีมงาน Pantip
ติดต่อลงโฆษณา
ร่วมงานกับ Pantip
Download App Pantip
Pantip Certified Developer
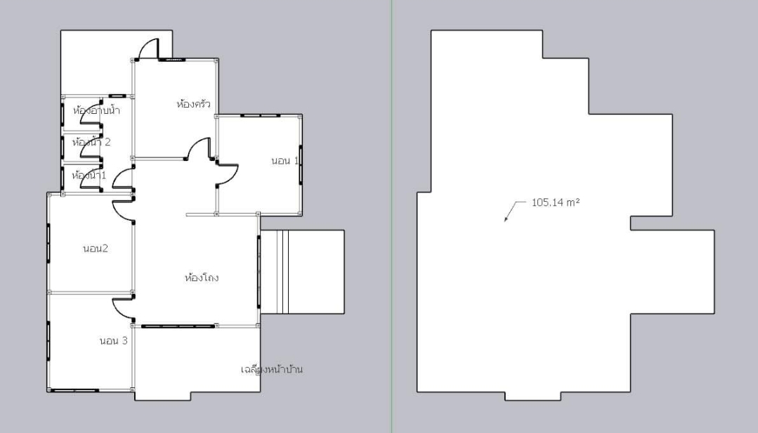
แบบบ้านแบบนี้ถูกต้องไหมครับ ทำไมเสามันเยอะจัง ช่างสร้างบ้านเขาบอกเยอะไปจริงไหมครับ
กระทู้คำถาม
ออกแบบและสร้างบ้าน
การก่อสร้างและต่อเติมอาคาร
บ้านเดี่ยว
ธุรกิจรับเหมาก่อสร้าง
การออกแบบทางวิศวกรรม (Engineering Design)
แบบบ้านครับ
แบบฐานรากครับ
หน้างานที่ลงเสาครับ
แก้ไขข้อความเมื่อ
คำตอบที่ได้รับเลือกจากเจ้าของกระทู้
ความคิดเห็นที่ 7
ถ้าตั้งใจเพิ่มเสาเพื่อลดคานให้ใช้เหล็กน้อยลง ก็นับว่าออกแบบตามโจทย์ครับ ระหว่างเอา เสามารับกับการเพิ่มเหล็กคาน การเอาเสามารับมันถูกเงินกว่า ครับ ยิ่งฐานรากแผ่ด้วย ยิ่งคุ้มที่จะซอยฐานราก
▼
กำลังโหลดข้อมูล...
▼
แสดงความคิดเห็น
กระทู้ที่คุณอาจสนใจ
เสาตอม่อ สร้างถูกแบบไหมครับ ?
สมาชิกหมายเลข 8868354
เหล็กหลังคาไม่ตรงเสา หอพัก 2 ชั้น
กำลังสร้างหอพักคะ เป็นหอพัก 2 ชั้น 8 ห้อง และอีก 1 ห้องชั้นล่างไว้ขายของแต่เราเห็นโครงหลังคาที่ช่างทำแบบนี้ อยากถามความคิดเห็นคะ ว่า แบบนี้ มันจะมีผลในอนาคตไหมคะ? คือ เราใช้บริษัทสร้างให้ แบบเหมาคะ จ่
สมาชิกหมายเลข 8679950
ได้ sms จากไทวัสดุ ทั้งๆที่ไม่เคยเปนลูกค้า ไมาทราบว่า ได้เบอร์มาจากไหนครับ
สมาชิกหมายเลข 4874772
อยากเริ่มต้นเรียนก่อสร้าง อ่านแบบ พื้นฐาน
อยากเริ่มต้นเรียนก่อสร้าง อ่านแบบ และประเมินเกี่ยวกับการก่อสร้าง เรียนออนไลน์หรือเรียนคอร์สสั้นยังไงก็ได้ค่ะ ควรเริ่มจากอะไรดีคะ อยากขอคำปรึกษา ที่บ้านทำเกี่ยวกับอสังหาริมทรัพย์ พึ่งกลับมาช่วยที่บ้านค
สมาชิกหมายเลข 9069656
อยากทราบราคาค่าแรงก่ออิฐมวลเบาและฉาบ 2 ด้านคะ
พอดีจะจ้างช่างมาทำบ้านคะ...แต่จะให้เหมาเฉพาะค่าแรงคะโดยเป็นงานก่ออิฐมวลเบาและฉาบผนัง 2 ด้านคะ พื้นที่โดยประมาณนะคะ 60 ตรม. เลยอยากสอบถามว่าปัจจุบันตอนนี้ราคาเหมาค่าแรงอย่างเดียวของก่ออิฐมวลเบาและฉาบ 2
สมาชิกหมายเลข 7598939
ทาวน์โฮมหลังริม ต่อเติมพื้นที่ ครัว/ซักล้าง หลังบ้าน 2.5 x 6.8 เมตร ลงเข็มแถวเดียวได้ไหม
ตามแปลนเสาเข็มด้านล่างสามารถทำได้ไหมครับ ไม่ได้ลงเป็นคู่ พื้นที่แถวลาดพร้าว 83 ครับ ขอบคุณครับ
สมาชิกหมายเลข 8440970
ขอคำแนะนำการทำแท่นวางถังน้ำบนดิน
สวัสดีครับ สร้างบ้านกำลังจะเสร็จ ใกล้จะถึงขั้นตอนการทำแท่นวางถังน้ำบนดิน ผมมีแผนจะติดตั้ง ถัง 1000 ลิตร 2 ถัง โดยจะเอา เสาเข็ม I-18 ที่ตัดมาเป็นวัสดุในการทำแท่น โดยจะขุดหลุมขนาด กว้าง 100 cm ยาว 160
TC SD
โรงรถแบบอยู่ด้านข้างบ้านแต่หลังคากันสาดไม่ได้คลุมถึงทางเข้าประตูหน้าบ้านทำยังไงให้ไม่เปียกฝนในหน้าฝนครับ?
บ้านพึ่งสร้างครับ หลังคาโรงรถคลุมไม่ถึงหน้าประตูเข้าบ้าน มีแนวทางทำหลังคาให้คนไม่เปียกฝนในช่วงหน้าฝนมั้ยครับ ต้องต่อยังไงให้สวยงามครับ โรงรถเป็นเสาเข็ม3ต้นอีกฝั่งยึดกับตัวบ้าน
สมาชิกหมายเลข 1722080
อ่านกระทู้อื่นที่พูดคุยเกี่ยวกับ
ออกแบบและสร้างบ้าน
การก่อสร้างและต่อเติมอาคาร
บ้านเดี่ยว
ธุรกิจรับเหมาก่อสร้าง
การออกแบบทางวิศวกรรม (Engineering Design)
บนสุด
ล่างสุด
อ่านเฉพาะข้อความเจ้าของกระทู้
หน้า:
หน้า
จาก
แชร์ :
โปรดศึกษาและยอมรับนโยบายข้อมูลส่วนบุคคลก่อนเริ่มใช้งาน
อ่านเพิ่มเติมได้ที่นี่
ยอมรับ
แบบบ้านแบบนี้ถูกต้องไหมครับ ทำไมเสามันเยอะจัง ช่างสร้างบ้านเขาบอกเยอะไปจริงไหมครับ
แบบฐานรากครับ
หน้างานที่ลงเสาครับ