อยากจะทุบผนังบ้านออก แต่ช่างบอกว่าทุบแล้วไม่ได้

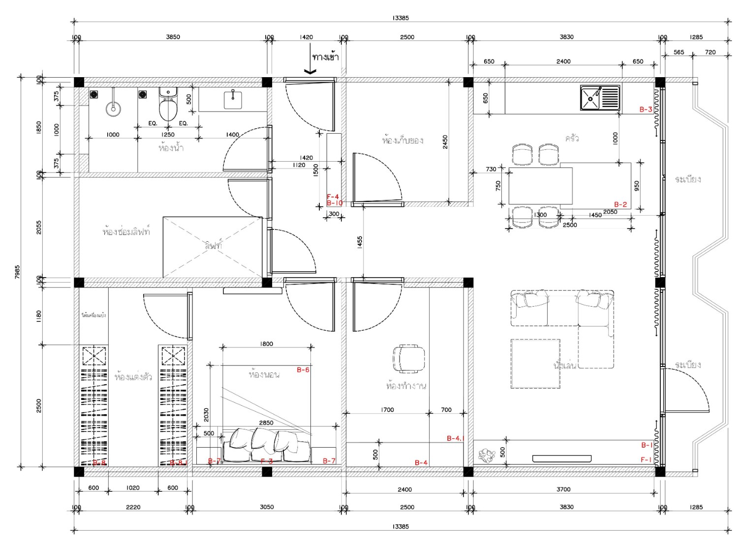
สวัสดีครับ ผมอยากทุบผนังและตรงหน้าต่างให้มันโล่งเป็นระเบียง(สีแดง) แต่ช่างที่มาทำบ้านผมบอกว่า ถ้าทุบออกหมดมันจะไม่มีเหลือให้รับน้ำหนักข้างบน มีวิธีนึงก็คือให้เหลือเอ็นไว้ (เอ็นโครงสร้างมั้ง)(สีเขียว) และตรงสีแดงก็ทุบออก 

ผมเลยอยากถามพวกพี่ๆว่า ผมสามารถทุบผนังและตรงหน้าต่างให้มันโล่งเป็นระเบียง ได้ไหมครับ หรือว่าต้องทำตามที่ช่างบอก หรือว่ามีวิธีไหนบ้างที่จะทำให้ทำเป็นระเบียงได้บ้างครับพี่ๆ


แสดงความคิดเห็น
โปรดศึกษาและยอมรับนโยบายข้อมูลส่วนบุคคลก่อนเริ่มใช้งาน อ่านเพิ่มเติมได้ที่นี่