หน้าแรก
คอมมูนิตี้
ห้อง
แท็ก
คลับ
ห้อง
แก้ไขปักหมุด
ดูทั้งหมด
เกิดข้อผิดพลาดบางอย่าง
ลองใหม่
แท็ก
แก้ไขปักหมุด
ดูเพิ่มเติม
เกิดข้อผิดพลาดบางอย่าง
ลองใหม่
{room_name}
{name}
{description}
กิจกรรม
แลกพอยต์
อื่นๆ
ตั้งกระทู้
เข้าสู่ระบบ / สมัครสมาชิก
เว็บไซต์ในเครือ
Bloggang
Pantown
PantipMarket
Maggang
ติดตามพันทิป
ดาวน์โหลดได้แล้ววันนี้
เกี่ยวกับเรา
กฎ กติกา และมารยาท
คำแนะนำการโพสต์แสดงความเห็น
นโยบายเกี่ยวกับข้อมูลส่วนบุคคล
สิทธิ์การใช้งานของสมาชิก
ติดต่อทีมงาน Pantip
ติดต่อลงโฆษณา
ร่วมงานกับ Pantip
Download App Pantip
Pantip Certified Developer
ห้องคอนโดตำแหน่งนี้ดีไหมครับ
กระทู้คำถาม
คอนโดมิเนียม
อสังหาริมทรัพย์
การออกแบบและตกแต่งอาคาร
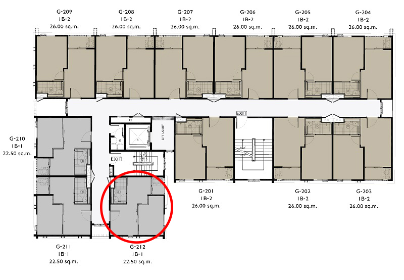
สนใจซื้อคอนโดห้องแรก มีห้องตำแหน่งนี้ว่างน่าสนใจตามผังที่แนบ อยากถามว่าจะมีปัญหาอะไรไหมครับ
▼
กำลังโหลดข้อมูล...
▼
แสดงความคิดเห็น
กระทู้ที่คุณอาจสนใจ
คอนโด ห้องนี้ทุกคนว่าโอเคไหม
คอนโดห้อง B3 หันหน้าหาทิศตะวันออก ห้องB1 ยังพอมีว่างแต่คิดเพื่อนบ้านสองด้าน กลัวเสียงสุดๆ ใจไปทาง B3 แล้วค่ะ แต่ประตูห้องอยู่หลังห้องขยะ แล้วใกล้ลิฟ แต่ห้องอยู่ในมุมหักมาทางซ้าย คนจะไม่เดินผ่านหน้าบ้า
สมาชิกหมายเลข 703318
เลือกซื้อคอนโด ให้ความสำคัญกับ ทำเล ขนาด แปลนห้อง dev เรียงลำดับยังไง เพราะอะไรคะ
ตามหัวข้อเลยค่ะ จขกทส่วนตัวคอนโดปจบ ค่อนข้างดี ยกเว้นขนาดและแปลนห้อง คือทำเลดีแต่ห้องเล็ก และเป็น 1bed ทรงสตูดิโอแล้วมีบานเลื่อนกั้น อารมณ์เหมือนอยู่โรงแรม ไม่ค่อยเป็นสัดส่วน ถามว่าทำไมถึงเลือกแต่แรกเ
สมาชิกหมายเลข 6672376
การเช่า แทนการซื้อ บ้าน/คอนโด ไปเรื่อย ๆ นี่มีจริงไหม มีคนทำเยอะไหมคะ ผ่านตาแว้บ ๆ ว่า เทรนด์นี้เอาต์ไปอีกแล้ว
คือได้ใช้ของใหม่ไปเรื่อย ๆ น่ะค่ะ
อวัยวะชิ้นนั้น
หานายหน้าขายคอนโดแบบสัญญาปิดอีไหมค่ะ
ต้องการจะขายคอนโด กำลังหานายหน้า แต่ส่วนใหญ่เขาให้ทำสัญญาปิด และระยะเวลา 1 ปี ทั้งนั้นค่ะ ตอนนี้เต็มใจจ่ายเงินให้นายหน้าอยู่แล้ว แต่ไม่รู้ว่าจะขายได้จริงไหม กลัวจะเสียเวลาไปฟรี ๆ 1ปีค่ะ ใครมีวิธีขายคอ
สมาชิกหมายเลข 8606301
ขอเข้าไปศึกษางานระบบภายในของตึกสูง
สวัสดีค่ะสอบถามนะคะ มีที่ไหนบ้างนักศึกษาสามารถขอเข้าไปดูงานได้ตึกสูงอาคารสูง ที่สามารถเข้าไปดูงานระบบภายในได้ เราทำเราทำหนังสือ อนุญาตได้ ใครมีที่ไหนแนะนำใครมีที่ไหนแนะนำบ้างมั้ยคะพวกคอนโดหรืออะไรก็ได
สมาชิกหมายเลข 7566312
อยากทราบข้อดีข้อเสียของคอนโด Kave ค่ะ
สวัสดีค่ะ คือหนูสนใจคอนโดKave Islan ส่วนตัวหนูเป็นเด็ก69นะคะกำลังจเข้าเรียนนปีหน้า จากที่หาข้อมูลมายังไม่เจอที่พี่รีวิวรคอนโดกันจริงจังเลยค่ะ เลยอยากทราบว่าเคฟมีข้อดีข้อเสียอะไรบ้าง ส่วนตัวหนูค่อนข้าง
สมาชิกหมายเลข 6288174
ในยุคที่คนไม่นิยมซื้อบ้าน/คอนโด และหันไปมองการเช่า ตลาดของเจ้าของหอพัก บ้าน คอนโด และนายหน้า จะรุ่งมากขึ้นไหม
ในยุคนี้ คนมักไม่นิยมซื้ออสังหาแล้ว คนปล่อยเช่า จะดีขึ้นไหม รายได้จะไหลมาเทมาหรือไม่ และอาชีพนายหน้าอสีงหาจะรุ่งไหม
สมาชิกหมายเลข 8026542
มีน้ำรั่วซึมจากระเบียงคอนโดซึ่งอาคารมีอายุประมาณ 9-10 ปีและรั่วแทบทุกห้องต้องเป็นหน้าที่ของเราที่ต้องรับผิดชอบใหมคะ
ขอสอบถามท่านผู้รู้ค่ะพอดีดิฉันอาศัยอยู่ที่คอนโดแห่งหนึ่งห้องข้างล่างได้แต่แจ้งนิติว่ามีน้ำรั่วซึมลงไปจากห้องตรงระเบียงด้านนอกของห้องซึ่งไม่ได้อยู่ในตัวห้องและระเบียงเวลาฝนตกก็สาดอยู่ตลอดเวลาและหลายๆห้
สมาชิกหมายเลข 9207297
ผังคอนโดแบบนี้ ห้องขยะคือตำแหน่งไหนหรอคะ
https://ibb.co/8Nstctg ปกติถ้าแปลนแบบนี้ห้องขยะคือตำแหน่งไหนหรอคะ พอดีสนใจซื้อดาวน์ต่อ ตำแหน่งห้องที่ตรงกับลิฟท์ คิดว่าห้องขยะน่าจะตรงข้ามกับห้องเลย ขอความคิดเห็นเพื่อนๆค่ะ ดูแปลนแบบนี้คิดว่าห้องขย
สมาชิกหมายเลข 4541890
อ่านกระทู้อื่นที่พูดคุยเกี่ยวกับ
คอนโดมิเนียม
อสังหาริมทรัพย์
การออกแบบและตกแต่งอาคาร
บนสุด
ล่างสุด
อ่านเฉพาะข้อความเจ้าของกระทู้
หน้า:
หน้า
จาก
แชร์ :
โปรดศึกษาและยอมรับนโยบายข้อมูลส่วนบุคคลก่อนเริ่มใช้งาน
อ่านเพิ่มเติมได้ที่นี่
ยอมรับ
ห้องคอนโดตำแหน่งนี้ดีไหมครับ