ผมกำลังจะรีโนเวทห้องคอนโดใจกลางเมืองย่านสุขุมวิท พื้นที่ห้องโดยประมาณ 100 ตร.ม. อยู่ห่างจากรถไฟฟ้าประมาณ 1.5 กม.โดยหลักๆคือแต่งไว้ให้เช่า
เริ่มแรกเลยก็ไปวัดพื้นที่ห้องและเก็บรายละเอียดต่างๆเพื่อที่จะนำมาใส่ในโปรแกรมทำการออกแบบต่อไป ผมใช้แอปของแอนดรอยชื่อแพลนเนอร์ในการทำครับ (จะขอความเห็นเพื่อนๆว่าจัดวางแบบไหนดีด้วยนะครับ)
วิธีใช้ก็ไม่ยากไม่จำเป็นต้องมีพื้นฐานในการใช้โปรแกรมใดๆเลย คือเลือกสิ่งที่เราต้องการแล้วใช้นิ้วลากๆความกว้างยาว หรือจิ้มวางเฟอร์นิเจอร์ต่างๆ
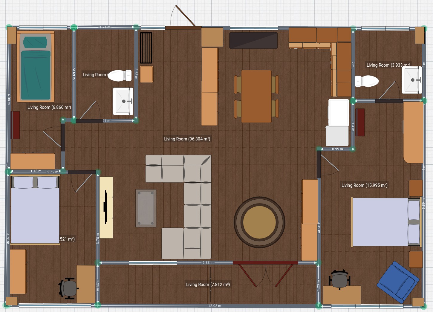
อันนี้คือแปลนห้องคร่าวๆที่ไปวัดแล้วใส่ไว้ จะเป็น2ห้องนอน 2ห้องน้ำ
ห้องนอนกว้าง 18.5 ตรม. และ 16 ตรม. ห้องน้ำกว้าง 4.5 และ 4 ตรม.

เนื่องจากเป็นห้องใหญ่ จึงคิดว่าคนมาเช่าน่าจะเป็นครอบครัวมากกว่าคนโสด และครอบครัวก็น่าจะต้องการห้องเยอะๆ เลยคิดว่าจะแบ่งห้องเพิ่มและวางเฟอนิเจอร์คร่าวๆตามนี้
** สี ดีไซน์และขนาดเฟอร์ใช้แบบมาตรฐานที่ให้มากับแอป ของจริงต้องไปเลือกอีกที**

พอใส่แบบนี้จะทำให้ห้องนอนด้านซ้ายเพิ่มมาอีกห้องแต่ขนาดจะกลายเป็นประมาณ 7 และ 9.5 ตรม.

อันนี้ห้องเล็กสุด 7 ตรม. เป็นห้องนอนหรือห้องเก็บของก็ได้

อีกความคิดนึงคือไม่ต้องปรับใช้โครงเดิมไปเลยแบบนี้ ห้องนึงพ่อแม่อยู่ อีกห้องลูกๆอยู่แชร์กันห้องใหญ่

ขอความเห็นทุกท่านหน่อยครับ แบบไหนน่าจะเหมาะกว่า
ออกแบบห้องคอนโดใจกลางเมืองสำหรับเช่า ใช้แอปมือถือ
เริ่มแรกเลยก็ไปวัดพื้นที่ห้องและเก็บรายละเอียดต่างๆเพื่อที่จะนำมาใส่ในโปรแกรมทำการออกแบบต่อไป ผมใช้แอปของแอนดรอยชื่อแพลนเนอร์ในการทำครับ (จะขอความเห็นเพื่อนๆว่าจัดวางแบบไหนดีด้วยนะครับ)
วิธีใช้ก็ไม่ยากไม่จำเป็นต้องมีพื้นฐานในการใช้โปรแกรมใดๆเลย คือเลือกสิ่งที่เราต้องการแล้วใช้นิ้วลากๆความกว้างยาว หรือจิ้มวางเฟอร์นิเจอร์ต่างๆ
อันนี้คือแปลนห้องคร่าวๆที่ไปวัดแล้วใส่ไว้ จะเป็น2ห้องนอน 2ห้องน้ำ
ห้องนอนกว้าง 18.5 ตรม. และ 16 ตรม. ห้องน้ำกว้าง 4.5 และ 4 ตรม.
** สี ดีไซน์และขนาดเฟอร์ใช้แบบมาตรฐานที่ให้มากับแอป ของจริงต้องไปเลือกอีกที**
อีกความคิดนึงคือไม่ต้องปรับใช้โครงเดิมไปเลยแบบนี้ ห้องนึงพ่อแม่อยู่ อีกห้องลูกๆอยู่แชร์กันห้องใหญ่
ขอความเห็นทุกท่านหน่อยครับ แบบไหนน่าจะเหมาะกว่า