
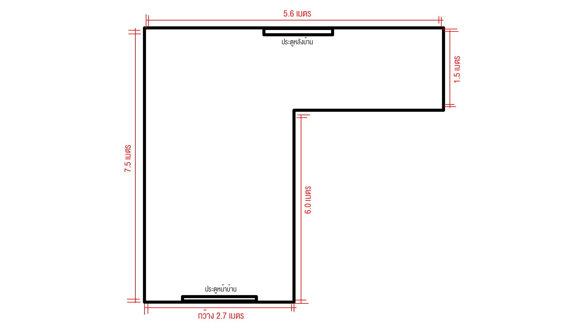
จากภาพ คือ เป็นทาวน์โฮม 2 ชั้น โดยพื้นที่บ้านตามภาพเลยครับ
ต้องการจะติดตั้งแอร์ จะติดตั้งกี่ btu ถึงจะเหมาะสม?
ช่วยแนะนำว่า จะใช้กี่ btu และที่เป็นอินเวอร์เตอร์ กับที่ไม่เป็นอินเวอร์เตอร์ ต่างกันยังไง
ที่รุ้ๆมาก คือ อินเวอร์เตอร์ ประหยัดไฟ และ ที่ไม่เป็นอินเวอร์เตอร์ จะไม่ค่อยประหยัดไฟ
ปล. ที่ homepro ทำไม เจ้าหน้าที่ขาย ถึงได้เชียร์ hitachi จัง
ผู้รู้เรื่องแอร์ช่วยแนะนำหน่อยครับ
จากภาพ คือ เป็นทาวน์โฮม 2 ชั้น โดยพื้นที่บ้านตามภาพเลยครับ
ต้องการจะติดตั้งแอร์ จะติดตั้งกี่ btu ถึงจะเหมาะสม?
ช่วยแนะนำว่า จะใช้กี่ btu และที่เป็นอินเวอร์เตอร์ กับที่ไม่เป็นอินเวอร์เตอร์ ต่างกันยังไง
ที่รุ้ๆมาก คือ อินเวอร์เตอร์ ประหยัดไฟ และ ที่ไม่เป็นอินเวอร์เตอร์ จะไม่ค่อยประหยัดไฟ
ปล. ที่ homepro ทำไม เจ้าหน้าที่ขาย ถึงได้เชียร์ hitachi จัง