ก่อนอื่นต้องขอขอบคุณทุกท่านที่เข้ามาอ่านและตอบกระทู้นะครับ เนื่องด้วยผมฝันอยากมีบ้านเป็นของตัวเองซักหลัง (ปัจจุบันเป็นผู้อาศัย 55) แต่ไม่มีความรู้ด้านนี้เลย สิ่งแรกคือไปถามอากู๋ ไปเจอโปรแกรมออกแบบบ้าน Sweet Home 3D ทำๆตาม youtube ได้ออกมาหลังหนึ่ง (ไม่รู้ถูกหลักการหรือไม่) แต่เอาเป็นว่าผมชอบและเหมาะกับพื้นที่
ผมมีคำถามเกี่ยวกับแบบที่ผมร่างดังนี้ครับ
1. แบบนี้ฐานรากต้องลงเสาเข็มหรือไม่ ใช้เสากี่ต้น แบบใด ขนาดเท่าไรครับ เนื่องจากต้องการให้สำหรับรองรับบ้านประมาณ 2-3 ชั้น แต่เบื้องต้นทำเป็นชั้นเดียวก่อน ส่วนด้านบนอาจทำเป็นดาดฟ้าแบบมีหลังคาสูงประมาณ 3 เมตร
2. อยากทราบราคางบประมาณในการก่อสร้างว่าซักประมาณเท่าใดครับ ต้องการสร้างแบบปูนเปลือย และปูพื้นด้วยกระเบื้อง
3. ไม่ทราบแบบบ้านดังกล่าวถูกหลักทางวิศวะกรรมหรือไม่ครับ ขอคำแนะนำด้วยครับ
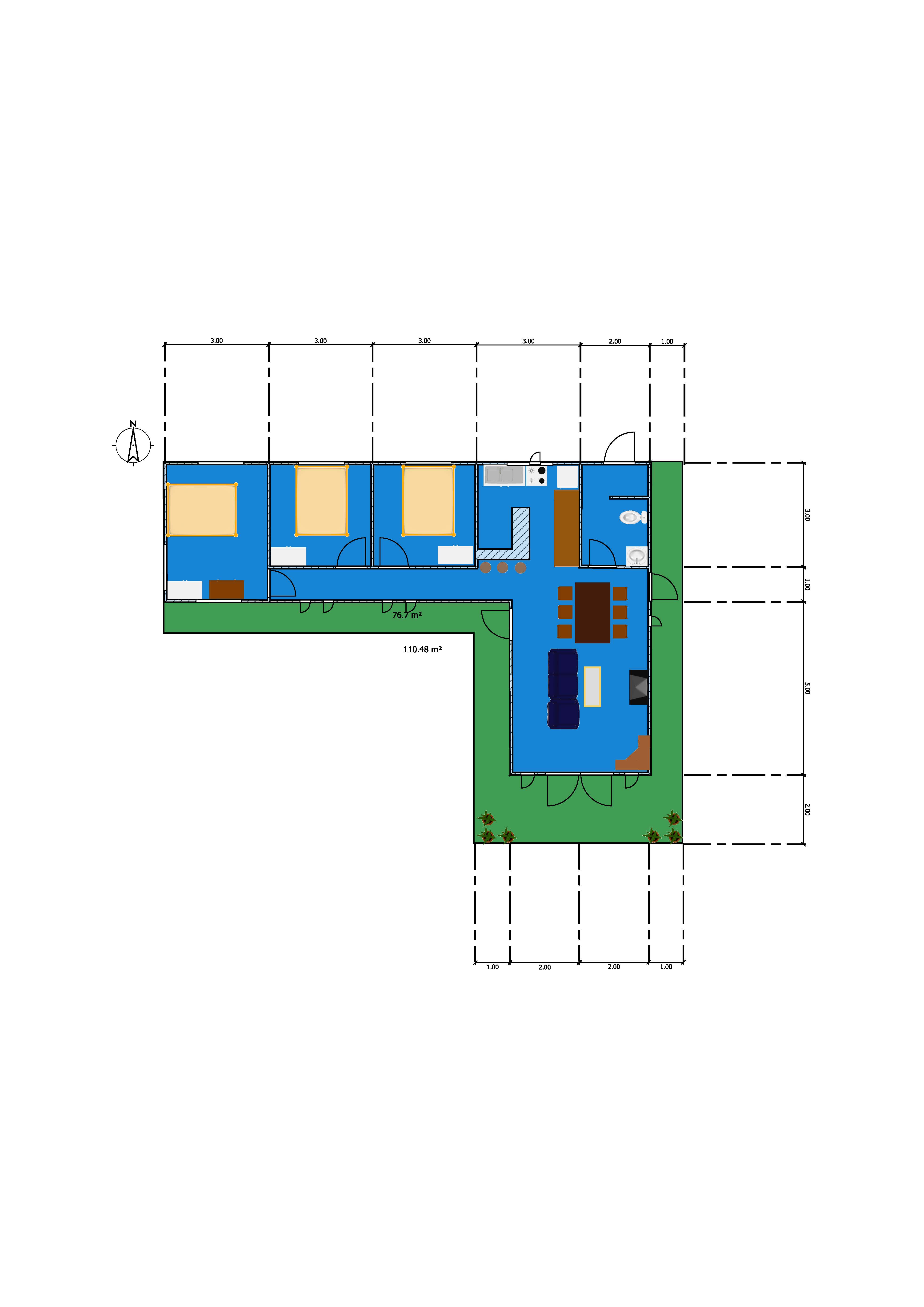
อยากทราบรายละเอียดและราคาค่าก่อสร้างตามแบบนี้ครับ
ผมมีคำถามเกี่ยวกับแบบที่ผมร่างดังนี้ครับ
1. แบบนี้ฐานรากต้องลงเสาเข็มหรือไม่ ใช้เสากี่ต้น แบบใด ขนาดเท่าไรครับ เนื่องจากต้องการให้สำหรับรองรับบ้านประมาณ 2-3 ชั้น แต่เบื้องต้นทำเป็นชั้นเดียวก่อน ส่วนด้านบนอาจทำเป็นดาดฟ้าแบบมีหลังคาสูงประมาณ 3 เมตร
2. อยากทราบราคางบประมาณในการก่อสร้างว่าซักประมาณเท่าใดครับ ต้องการสร้างแบบปูนเปลือย และปูพื้นด้วยกระเบื้อง
3. ไม่ทราบแบบบ้านดังกล่าวถูกหลักทางวิศวะกรรมหรือไม่ครับ ขอคำแนะนำด้วยครับ