หน้าแรก
คอมมูนิตี้
ห้อง
แท็ก
คลับ
ห้อง
แก้ไขปักหมุด
ดูทั้งหมด
เกิดข้อผิดพลาดบางอย่าง
ลองใหม่
แท็ก
แก้ไขปักหมุด
ดูเพิ่มเติม
เกิดข้อผิดพลาดบางอย่าง
ลองใหม่
{room_name}
{name}
{description}
กิจกรรม
แลกพอยต์
อื่นๆ
ตั้งกระทู้
เข้าสู่ระบบ / สมัครสมาชิก
เว็บไซต์ในเครือ
Bloggang
Pantown
PantipMarket
Maggang
ติดตามพันทิป
ดาวน์โหลดได้แล้ววันนี้
เกี่ยวกับเรา
กฎ กติกา และมารยาท
คำแนะนำการโพสต์แสดงความเห็น
นโยบายเกี่ยวกับข้อมูลส่วนบุคคล
สิทธิ์การใช้งานของสมาชิก
ติดต่อทีมงาน Pantip
ติดต่อลงโฆษณา
ร่วมงานกับ Pantip
Download App Pantip
Pantip Certified Developer
สอบถามราคาสร้างบ้าน ที่ ราชบุรี (ต่อตารางเมตร)
กระทู้คำถาม
รีโนเวทบ้าน
ออกแบบและสร้างบ้าน
บ้าน
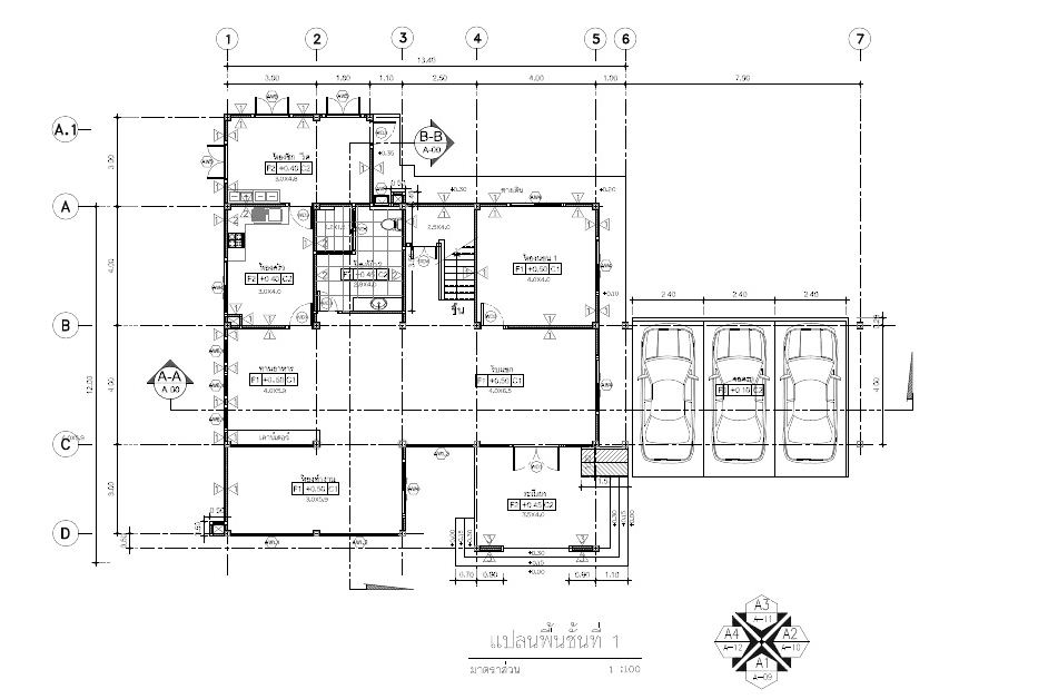
ผมเอาแบบไปให้ผู้รับเหมาตีราคามาแล้ว ผู้รับเหมาคิด ตรางเมตรละ 13,000 บาท ผมอยากรู้ว่าราคาแพงเกินไปรึป่าวครับ กระเบื้อง หลอดไฟ สุขภัณฑ์ ผมซื้อเองครับ
▼
กำลังโหลดข้อมูล...
▼
แสดงความคิดเห็น
กระทู้ที่คุณอาจสนใจ
จ้างผู้รับเหมา ตรม.ละ 3,500 เฉพาะค่าแรง ถือว่าไหมไหม ตจว
กําลังจะสร้างบ้านพื้นที่ใช้สอย 138 ตารางเมตร โดยจ้างที่้เหมาก่อสร้าง แล้วชื้อของ้อง แต่ผู้รับเหมาคิด 168ตารางเมตร ราคา3500ต่อตารางเมตร รวม 588000 ผมรู้สึกมันแปลกๆเลยอยากมา สอบถาม มันคิดตามอะไรหรอคับ ไ
สมาชิกหมายเลข 2465727
สอบถามราคาค่าแรงก่อสร้าง
จะสร้างอาคารชั้นเดียว 3 ห้อง สอบถามราคาค่าแรง(เฉพาะค่าแรงต่อตารางเมตร) ครับ 1.ก่ออิฐบล็อค+ฉาบ 2 ด้าน 2.ปูกระเบื้องพื้นขนาด 12 นิ้ว 3.ฝ้าทีบาร์ 4.ทาสีผนัง
สมาชิกหมายเลข 876799
อยากทราบราคาช่างสร้างบ้านไม้ ต่อตารางเมตร
ปกติสร้างบ้านไม้ช้างจะคิดตรารางเมตรละเท่าไหร่คะ เอาแบบที่ไม่รวมค่าวัสดุ พอดีจะเหมาเเค่ค่าแรงค่ะ
สมาชิกหมายเลข 8461076
ค่าแรงสร้างบ้านไม้ 8000 บาทต่อตร.ม ในต่างจังหวัดแพงไหม
สวัสดีค่ะมีเรื่องอยากสอบถามเพื่อนๆชาวพันทิปหน่อยค่ะ พอดีกำลังจะสร้างบ้านไม้ ไม้ที่ใช้รื้อมาจากบ้านหลังเก่า วางแปลนไว้ว่าบ้านจะพื้นที่ใช้สอยขนาด 92 ตร.ม.(รวมระเบียง) โดยเป็นบ้านยกใต้ถุนสูง 2 เมตร(ทางเร
สมาชิกหมายเลข 5941110
สร้างบ้านหลังนี้แพงไปมั้ยครับ
พอดีกำลังจะสร้างบ้านให้กับลูกสาวที่เชียงรายครับ ให้ผู้รับเหมาดู 3 เจ้า เจ้านี้ตีถูกสุดสุดที่ 8,800 ต่อตารางเมตร. รวม 135ตารางเมตร ราคา 1,188,000 บาท ยกคานลอย 80ซม. หลังคาตามรูป เปลี่ยนภายในเป็น 4นอน 3
สมาชิกหมายเลข 2171138
สอบถามราคาสร้างบ้าน ปี2565 ต่อตารางเมตรหน่วยครับ ตอนนี้ตกตารางเมตรละกี่บาท
สอบถามราคาสร้างบ้าน ปี 2565 ต่อตารางเมตรครับ ตอนนี้ตกตารางเมตรละกี่บาท ลักษณะบ้าน 2 ชั้น ฐานราก ตอกเสาเข็ม วัสดุแต่งบ้านเกรดกลางๆ หลังคาซีแพค
สมาชิกหมายเลข 2820377
(ใครกำลังหาผู้รับเหมาต่อเติมและสถาปนิกโปรดระวัง) ผู้รับเหมาทำหลังคาฝ้าหล่นลงมาทั้งอัน
ขอรีวิวให้คนที่กำลังหาผู้รับเหมาต่อเติมและสถาปนิกสำหรับส่วน build in นะคะ เนื่องจากเราติดต่อกับดีไซเนอร์ซึ่งเค้าเป็นคนเสนอผู้รับเหมาท่านนี้เข้ามา และทั้ง 2 ท่านไม่มีการกลับมาแก้ปัญหาที่ตัวเองทำไว้ (สถ
สมาชิกหมายเลข 1982218
เทปูน ปูกระเบื้อง เดี่ยวนี้ควรราคาเท่าไหร่ครับ
สวัสดีครับ พอดีผมมือใหม่อยากต่อเติมหลังบ้าน พื้นที่ประมาณ 27 ตรม. รวมค่าของ เราออกค่ากระเบี้ยงเอง ราคาจะอยู่ประมาณเท่าไหร่ ต่อตารางเมตรครับ (ตอนนี้มีช่างประเมิน 27ตรม. ปูนหนา16cm. รวมปูกระเบื
Bonut Sweetdream
ปรึกษาครับ ช่างขุดบ่อน้ำชิดขอบรั้วมากเกินไป แก้ไขยังไงดีครับ (มีรูป)
ที่ดินเป็นที่สวนอยู่ต่างจังหวัดทางภาคเหนือ พอดีผมเข้าไปตรวจหน้างานแทนเจ้าของใหม่ แล้วพบว่า เจ้าของเดิมสั่งผู้รับเหมาขุดบ่อชิดรั้วมาก (เหลือพื้นที่ตรงขอบรั้ว ประมาณซัก 1 เมตรได้) ตามรูปเลยครับ แบบว่า
9ตะวัน
โดนผู้รับเหมาหอบเงินหนี ต่อไปต้องลุยงานทำบ้านเองเพื่อประหยัดงบ รบกวนผู้รู้ให้คำปรึกษาหน่อยค่ะ
ตามหัวข้อกระทู้เลยค่ะ ผรม หอบเงินหนี เงินก็ร่อยหรอ อยากสอบถามว่าจะต้องดำเนินการต่อไปยังไงดีคะ ตอนนี้ได้โครงสร้างบ้าน หลังคา ได้ฝ้า ติดตั้งระบบไฟ (ยังไม่แล้วเสร็จ) ได้ขุดติดตั้งถังแซค ได้ประตูหน้าต่างด
สมาชิกหมายเลข 7096725
อ่านกระทู้อื่นที่พูดคุยเกี่ยวกับ
รีโนเวทบ้าน
ออกแบบและสร้างบ้าน
บ้าน
บนสุด
ล่างสุด
อ่านเฉพาะข้อความเจ้าของกระทู้
หน้า:
หน้า
จาก
แชร์ :
โปรดศึกษาและยอมรับนโยบายข้อมูลส่วนบุคคลก่อนเริ่มใช้งาน
อ่านเพิ่มเติมได้ที่นี่
ยอมรับ
สอบถามราคาสร้างบ้าน ที่ ราชบุรี (ต่อตารางเมตร)