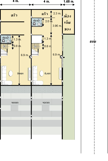
คือมีทาวน์เฮ้าส์ 2 หลัง ด้านข้างติดถนน
เป็นทาวน์เฮ้าส์รุ่นเก่า 2 ห้องนอน ชั้นบนไม่มีห้องน้ำ
หลังริมขวาติดถนนเป็นของ จขกท. เอง ส่วนหลังซ้ายแฟนมาซื้อภายหลัง
ซึ่งแต่ละหลังก็ต่อเติมออกไป ประมาณผังในรูปคร่าวๆ

ตอนนี้ จขกท. พยายามหาคนมาออกแบบรีโนเวทพื้นที่ใช้สอยใหม่ แต่งบเราคงน้อย ยังหาคนออกแบบไม่ได้เลย
เลยคิดว่าจะขีดๆเอาเองนี่แหละ แล้วก็หาผู้รับเหมาแถวบ้าน
แต่คิดไปคิดมามันก็ยังไม่ลงตัวอ่ะค่ะ เลยอยากขอคำแนะนำจากเพื่อนๆ
โจทย์ของ จขกท. มีดังนี้
- เปิดด้านข้างหันออกถนน
- ออกแบบให้สามารถแบ่งพื้นที่ทำร้าน แยกเป็นสัดส่วนออกจากส่วนพักอาศัย (อาจให้เช่าร้าน)
ความฝันของ จขกท. คืออยากมีร้านอาหาร+เบเกอรี่+กาแฟสด แต่ตอนนี้ยังไม่พร้อมติดงานประจำ กับยังไม่กล้ารับความเสี่ยง
- สามารถค่อยๆ ต่อเติมห้องขวา (หันออกถนน) แบ่งเป็นห้องๆ ให้เช่าเป็นร้านค้าได้ อันนี้ทำให้หนักใจ เพราะไม่รู้จะเอาห้องน้ำไว้ตรงไหนถึงจะเหมาะ
- ออกแบบพื้นที่การใช้งานของ 2 หลังให้ต่อเนื่องกัน เรายังคงต้องใช้อยู่อาศัยด้วย และให้บ้านสร้างรายได้ได้ด้วย
รบกวนขอคำแนะนำด้วยนะคะ ขอบคุณล่วงหน้าค่ะ
ขอคำแนะนำอยากรีโนเวททาวน์เฮ้าส์
เป็นทาวน์เฮ้าส์รุ่นเก่า 2 ห้องนอน ชั้นบนไม่มีห้องน้ำ
หลังริมขวาติดถนนเป็นของ จขกท. เอง ส่วนหลังซ้ายแฟนมาซื้อภายหลัง
ซึ่งแต่ละหลังก็ต่อเติมออกไป ประมาณผังในรูปคร่าวๆ
ตอนนี้ จขกท. พยายามหาคนมาออกแบบรีโนเวทพื้นที่ใช้สอยใหม่ แต่งบเราคงน้อย ยังหาคนออกแบบไม่ได้เลย
เลยคิดว่าจะขีดๆเอาเองนี่แหละ แล้วก็หาผู้รับเหมาแถวบ้าน
แต่คิดไปคิดมามันก็ยังไม่ลงตัวอ่ะค่ะ เลยอยากขอคำแนะนำจากเพื่อนๆ
โจทย์ของ จขกท. มีดังนี้
- เปิดด้านข้างหันออกถนน
- ออกแบบให้สามารถแบ่งพื้นที่ทำร้าน แยกเป็นสัดส่วนออกจากส่วนพักอาศัย (อาจให้เช่าร้าน)
ความฝันของ จขกท. คืออยากมีร้านอาหาร+เบเกอรี่+กาแฟสด แต่ตอนนี้ยังไม่พร้อมติดงานประจำ กับยังไม่กล้ารับความเสี่ยง
- สามารถค่อยๆ ต่อเติมห้องขวา (หันออกถนน) แบ่งเป็นห้องๆ ให้เช่าเป็นร้านค้าได้ อันนี้ทำให้หนักใจ เพราะไม่รู้จะเอาห้องน้ำไว้ตรงไหนถึงจะเหมาะ
- ออกแบบพื้นที่การใช้งานของ 2 หลังให้ต่อเนื่องกัน เรายังคงต้องใช้อยู่อาศัยด้วย และให้บ้านสร้างรายได้ได้ด้วย
รบกวนขอคำแนะนำด้วยนะคะ ขอบคุณล่วงหน้าค่ะ