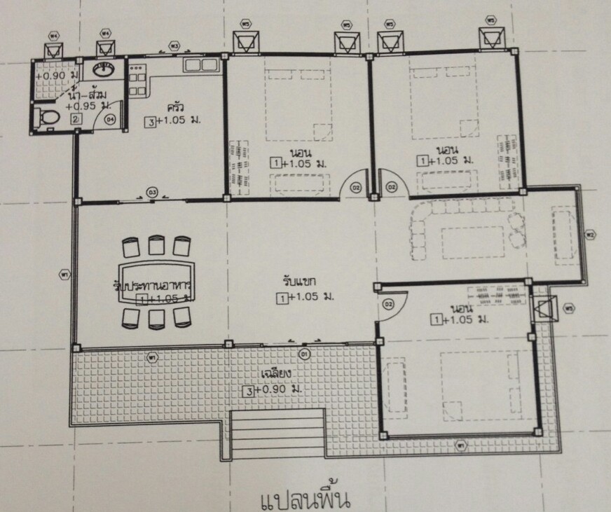
ช่วยดูแบบบ้านหน่อย ได้แบบคร่าวๆมาแล้ว

กำลังอยู่ในขั้นตอนการเขียนแบบ ได้แบบภายในกับภายนอกคร่าวๆมาแล้ว  หน้าบ้านหันหน้าทางทิศใต้  มันลงตัวหรือยังหรือน่าจะแก้ไขตรงไหนบ้างครับ

แสดงความคิดเห็น
โปรดศึกษาและยอมรับนโยบายข้อมูลส่วนบุคคลก่อนเริ่มใช้งาน อ่านเพิ่มเติมได้ที่นี่