หน้าแรก
คอมมูนิตี้
ห้อง
แท็ก
คลับ
ห้อง
แก้ไขปักหมุด
ดูทั้งหมด
เกิดข้อผิดพลาดบางอย่าง
ลองใหม่
แท็ก
แก้ไขปักหมุด
ดูเพิ่มเติม
เกิดข้อผิดพลาดบางอย่าง
ลองใหม่
{room_name}
{name}
{description}
กิจกรรม
แลกพอยต์
อื่นๆ
ตั้งกระทู้
เข้าสู่ระบบ / สมัครสมาชิก
เว็บไซต์ในเครือ
Bloggang
Pantown
PantipMarket
Maggang
ติดตามพันทิป
ดาวน์โหลดได้แล้ววันนี้
เกี่ยวกับเรา
กฎ กติกา และมารยาท
คำแนะนำการโพสต์แสดงความเห็น
นโยบายเกี่ยวกับข้อมูลส่วนบุคคล
สิทธิ์การใช้งานของสมาชิก
ติดต่อทีมงาน Pantip
ติดต่อลงโฆษณา
ร่วมงานกับ Pantip
Download App Pantip
Pantip Certified Developer
สอบถามท่านผู้รู้เรื่องประตูบานเปลือยครับ
กระทู้คำถาม
ออกแบบและสร้างบ้าน
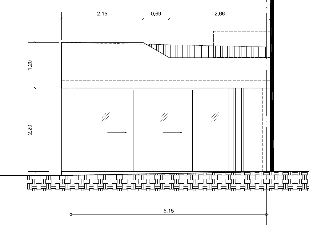
ผมจะทำที่จอดรถมอเตอไซค์ โดยต้องการให้มีลักษณะคล้ายโชว์รูมด้วย จึงอยากใช้เป็นกระจกเปลือยเพื่อโชว์รถที่จอดภายใน แต่ช่วงค่อนข้างยาวเลยไม่แน่ใจว่าจะสามารถทำได้หรือไม่ รบกวนท่านผู้รู้ชี้แนะทีครับ
▼
กำลังโหลดข้อมูล...
▼
แสดงความคิดเห็น
กระทู้ที่คุณอาจสนใจ
ประตูกระจกบานเปลือยหน้าร้านมีช่อง แมลงเข้าเยอะมากทำอย่างไรได้บ้างคะ
เราเปิดร้านแล้วติดเป็นประตูกระจกบานเปลือย พอติดเสร็จแล้วมันมีช่องค่ะ แต่ช่างบอกว่าต้องมีช่องให้มันเปิดปิดได้ แต่พอตกตอนเย็นแล้วแมลงเข้าร้านเยอะมากๆค่ะ เข้ามาตามช่องประตู เราสามารถแก้ปัญหาอย่างไรได้บ
สมาชิกหมายเลข 1932301
ปวดหัวเพราะเอาวอลเปเปอร์มาติดทับกระจก เกิดขึ้นได้หรือคิดไปเอง?
ประตูบ้านผมจะคล้ายในรูปนี้ครับ ปัญหาเกิดขึ้นเมื่อผมเอาวอลเปเปอร์มาแปะกระจกด้านล่างสุด (เพื่อกันไม่ให้แมวตีกัน) ผลคือ ตั้งแต่เอาวอลล์เปเปอร์มาติดรู้สึก แน่นตา ปวดขมับ ปวดหัวด้านซ้ายด้านขวาตลอดเวลาเลย
สมาชิกหมายเลข 1564340
ตามหาเกมเก่า
ตทมหาเกมมือถือยุคประมาณปี2014ครับ เป็นเกมแนวโจรกรรมมุมมองด้านบนคล้ายๆเกมrobbery bobในปัจจุบัน ลักษณะเกมจะให้เราวางแผนเข้าไปขโมยของมีค่า โดยจะให้เราแบ่งอุปกรณ์ต่างๆให้เพื่อน(NPC)เช่น เอาค้นไปทุบตู้โชว์
สมาชิกหมายเลข 5752281
ร้องเรียน พนักงานแฟลช สาขาท่าข้าม อำเท่าแซะ จังหวัดชุมพร
เนื่องด้วยดิฉันมีการสั่งสินค้าที่ เป็นประตูบานกระจก ทุกครั้งที่มาส่ง แตกหักทุกครั้ง ผลกระทบคือ ฉันจ้างคนมาติดตั้ง เสียค่าใช้จ่าย โดยไม่สามารถติดตั้งกระจกได้เลย ดูคำสั่งซื้อย้อนหลังได้เลย ถูกตีกล
สมาชิกหมายเลข 8503300
คนขับรถส่งอาหารช่วยคนตาบอด มีคนช่วยเฝ้ารถให้คนขับรถที่ช่วยคนตาบอด
ช่วยกันเป็นทอดๆแบบนี้ทำได้ไง มีมอไซค์ส่งอาหารจอดริมถนน ลงไปช่วยคนตาบอดข้ามถนน แล้วมีผู้หญิงแถวนั้นข้ามถนนไปเฝ้ามอไซค์ และอาหาร ที่คนขับรถจอดลงไปช่่วยคนตาบอด .ช่วยกันเป็นทอดๆแบบนี
สมาชิกหมายเลข 9246598
สิ่งสำคัญมาก ในการเลือกซื้อคอนโด แต่เรามองข้ามไป
ในการเลือกซื้อบ้านหรือคอนโด ..ปกติ เราจะดูทำเล ราคา ขนาดห้อง ทิศทางลม การเดินทาง ฯลฯ แต่เมื่อเข้าอยู่จริงๆแล้ว จะเจอปัญหา ที่เรามังจะบอกตัวเองว่า ลืม..โฟกัส เรื่องนี้ไป ตอนเลือกซื้อ (คือ ถ้ารู้ก็จะไม
คนไม่ยอมใคร
ถ้าขอบไม่มีวงกบ สามารถติดประตูเข้าไปได้รึปล่าวครับ
ขอบเป็นลักษณะปูนติดกระเบื้อง กว้าง70 สูง190 เซนต์ สามารถติดประตูไม้เข้าไปกับปูนได้เลยรึปล่าวครับ เท่าที่หาข้อมูลมาเจอแต่ประตูกระจกบานเปลือย แต่ถ้าเปลี่ยนเป็นไม้จะทำได้มั้ยครับ ขอบคุณครับ
KuMp
จอดรถในห้างแล้วมีรถมาจอดซ้อนคันใส่เบรกมือไว้ คุณแก้ปัญหาอย่างไรกัน
เมื่อเช้านี้ไปอ่าน เรื่องหนึ่งมาครับ มีคนหนึ่งไปจอดรถในห้าง ทำธุระเสร็จกลับมาที่รถ มีรถจอดซ้อนคันอยู่ข้างหน้า ชิดเกือบติดรถเขา ไม่เหลือช่องให้หักพวงมาลัย เขาลองไปขยับรถดู เหมือนว่ารถเข้าเกียร์ไว้อยู
totoonline
กำลังคิดว่าจะมีเหตุล้างแค้นจากชาวมอไซค์ กับรถมินิต้นเหตุมั้ย
คืออาจเป็นไปได้ว่า ชาวมอไซค์เจ็บแค้นแทนเพื่อนร่วมพาหนะ เห็นรถมินิคันนั้น ไม่ว่าจะแยกไหน กระจกข้างอาจปลิวจนเจ้าของขี้เกียจซ่อม เพราะเป็นเป้าล้างแค้นจากชาวมอไซค์ ทุกแยกที่ติดไฟแดง ไม่ว่าจอดรถที่ไหน
สมาชิกหมายเลข 2043057
เราไม่อยากมีพ่อผิดไหม
เราชื่อครีมนะคะขอเล่าก่อนว่าตอนนั้นก็คือเราน่ะกำลังมองว่าใครขี่จักรยานออกหน้าบ้านคือตอนนั้นเราส่งดูกระจกดูแต่พ่อเราเนี่ยก็ได้มาส่องดูเหมือนกันพ่อเนี่ยได้เปิดบานประตูที่มันเป็นมุ้งลวดใส่หน้าเราเต็มๆเรา
สมาชิกหมายเลข 8873388
อ่านกระทู้อื่นที่พูดคุยเกี่ยวกับ
ออกแบบและสร้างบ้าน
บนสุด
ล่างสุด
อ่านเฉพาะข้อความเจ้าของกระทู้
หน้า:
หน้า
จาก
แชร์ :
โปรดศึกษาและยอมรับนโยบายข้อมูลส่วนบุคคลก่อนเริ่มใช้งาน
อ่านเพิ่มเติมได้ที่นี่
ยอมรับ
สอบถามท่านผู้รู้เรื่องประตูบานเปลือยครับ