ยาวหน่อยนะครับ
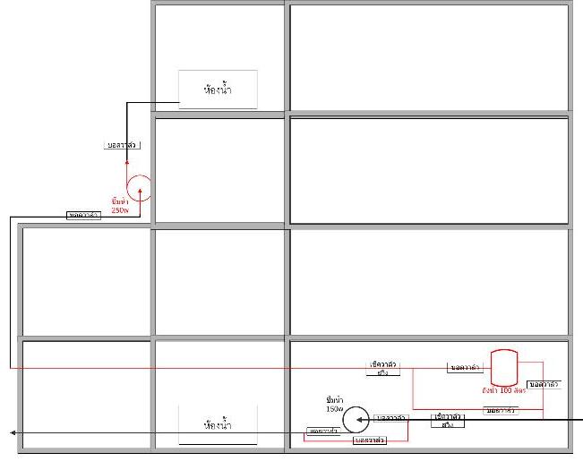
คือเดิมท่อน้ำเดิมเดินไปยังห้องน้ำชั้น 1 และชั้น 4 โดยมีปั๊มน้ำที่ชั้น 3 ดึงไปครับ ทีนี้ปัญหาคือใช้น้ำชั้น 4 ชั้น 1 น้ำก็จะขาด ประกอบกับปั๊มน้ำ ชั้น 3 เจ๊งไป พ่อดันไปเปลี่ยนแบบ 150w มา น้ำชั้น 4 เลยไม่แรงไปอีก ทีนี้ก็เลยจะปรับคิดได้ดังภาพครับ (สีแดงของใหม่ สีดำของเก่า)

ความคิดคือจะแยกน้ำที่ใช้ชั้น 4 กับชั้น 1 ซะเลย โดยชั้น 4 ก็มีถังรองรับ แต่แม่ไม่ยอมให้ใช้ถังใหญ่ บ้านเก่ากลัวทรุด เลยคิดว่าจะหาถังแค่ 100 ลิตร (หนักเท่าผมเลย) แล้วก็เปลี่ยนปั๊มชั้น 3 ให้เป็น 250w เอาของเก่ามาใช้กับชั้น 1 ประมาณนี้ครับ ไม่ทราบว่าแบบตามภาพที่คิดไว้ใช้ได้ หรือต้องปรับปรุงอย่างไรครับ
ลองคิดจะเดินระบบน้ำในบ้าน (อาคารพาณิชย์) ขอคำแนะนำครับ
คือเดิมท่อน้ำเดิมเดินไปยังห้องน้ำชั้น 1 และชั้น 4 โดยมีปั๊มน้ำที่ชั้น 3 ดึงไปครับ ทีนี้ปัญหาคือใช้น้ำชั้น 4 ชั้น 1 น้ำก็จะขาด ประกอบกับปั๊มน้ำ ชั้น 3 เจ๊งไป พ่อดันไปเปลี่ยนแบบ 150w มา น้ำชั้น 4 เลยไม่แรงไปอีก ทีนี้ก็เลยจะปรับคิดได้ดังภาพครับ (สีแดงของใหม่ สีดำของเก่า)
ความคิดคือจะแยกน้ำที่ใช้ชั้น 4 กับชั้น 1 ซะเลย โดยชั้น 4 ก็มีถังรองรับ แต่แม่ไม่ยอมให้ใช้ถังใหญ่ บ้านเก่ากลัวทรุด เลยคิดว่าจะหาถังแค่ 100 ลิตร (หนักเท่าผมเลย) แล้วก็เปลี่ยนปั๊มชั้น 3 ให้เป็น 250w เอาของเก่ามาใช้กับชั้น 1 ประมาณนี้ครับ ไม่ทราบว่าแบบตามภาพที่คิดไว้ใช้ได้ หรือต้องปรับปรุงอย่างไรครับ