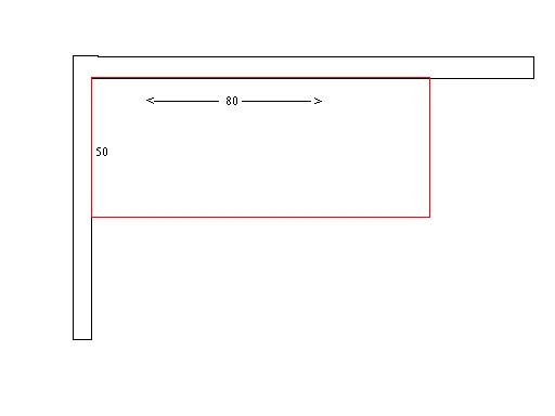
จากภาพ มีกำแพง 2 ด้านในห้องน้ำปูกระเบื้องแล้ว ผมต้องการหล่อเค้าเตอร์อ่างล้างหน้าลอยติดผนังขึ้นมาโดยด้านนึงกว้าง 50 ซ.ม. อีกด้านยาว 80 ซ.ม. โดยจะเจาะกระเบื้องเพื่อสอดเหล็กเข้าไปทำเป็นโครงยึด แล้วใช้ปูนมอร์ต้า คอนกรีตแห้ง 240 KSC เทหนาประมาณ 10 ซ.ม. ไม่ทราบจะรับน้ำหนักได้มั้ยครับ หรือผมต้องเอาหินเจียรเปิดกระเบื้องตรงนั้นออกก่อน
จะเทพื้นเค้าเตอร์ติดผนังที่ปูกระเบื้องไว้ จะต้องเจาะกรีดกระเบื้องออกก่อนมั้ยครับ?
จากภาพ มีกำแพง 2 ด้านในห้องน้ำปูกระเบื้องแล้ว ผมต้องการหล่อเค้าเตอร์อ่างล้างหน้าลอยติดผนังขึ้นมาโดยด้านนึงกว้าง 50 ซ.ม. อีกด้านยาว 80 ซ.ม. โดยจะเจาะกระเบื้องเพื่อสอดเหล็กเข้าไปทำเป็นโครงยึด แล้วใช้ปูนมอร์ต้า คอนกรีตแห้ง 240 KSC เทหนาประมาณ 10 ซ.ม. ไม่ทราบจะรับน้ำหนักได้มั้ยครับ หรือผมต้องเอาหินเจียรเปิดกระเบื้องตรงนั้นออกก่อน