คำตอบที่ได้รับเลือกจากเจ้าของกระทู้
ความคิดเห็นที่ 5
ถ้าตามรายละเอียดที่ให้มา โดยรวมแล้วทุกรายการแพงมาก
หนักๆเลยก็
- เข็มหกเหลี่ยม 4 เมตร ค่าเข็ม + ค่าขุด + ขย่ม เคยทำประมาณต้นละ 4 - 500 เท่านั้น
- ทุบรื้อผนัง 6 ตรม ค่ารถหกล้อขนทิ้งเที่ยวละ 7 - 800 + ค่าแรง 6 พันกว่า แพงเกินนนน
- งานพื้น คสล 3500/ตรม แพงงงงงมากกกกก
- เสา คาน คสล 3000 - 3500/ม ราคานี้เป็นราคาเดียวกับทำรั้ว (สวยๆ) ต่อเมตรแล้วครับ
- กระเบื้องซีแพคโมเนียดูราคาได้จาก web ของ Homemart มีตั้งแต่แผ่นละ 1x - 3x บาท ใช้ 10 - 11 แผ่น/ตรม. ฉะนั้นราคาจะประมาณ 3-400 บาท/ตรม.
- เดินไฟร้อยท่อ จุดละประมาณ 6 - 800 ขึ้นกับยี่ห้อสายไฟ ส่วน สวิทช์ ปลั๊ก โคมไฟดาวไลท์คุณไปซื้อมาเองดีกว่า
- ค่าปูกระเบื้องแพงมาก เว้นแต่ว่าต้องปูเนี้ยบ ได้ระดับ แนบสนิท ลูบดูไม่เจอรอยต่อเลย
และรายการอื่นๆ อีกด้วย
สรุปว่าแพงมาก ลองหาเจ้าอื่นมาตีราคาเปรียบเทียบครับ
หนักๆเลยก็
- เข็มหกเหลี่ยม 4 เมตร ค่าเข็ม + ค่าขุด + ขย่ม เคยทำประมาณต้นละ 4 - 500 เท่านั้น
- ทุบรื้อผนัง 6 ตรม ค่ารถหกล้อขนทิ้งเที่ยวละ 7 - 800 + ค่าแรง 6 พันกว่า แพงเกินนนน
- งานพื้น คสล 3500/ตรม แพงงงงงมากกกกก
- เสา คาน คสล 3000 - 3500/ม ราคานี้เป็นราคาเดียวกับทำรั้ว (สวยๆ) ต่อเมตรแล้วครับ
- กระเบื้องซีแพคโมเนียดูราคาได้จาก web ของ Homemart มีตั้งแต่แผ่นละ 1x - 3x บาท ใช้ 10 - 11 แผ่น/ตรม. ฉะนั้นราคาจะประมาณ 3-400 บาท/ตรม.
- เดินไฟร้อยท่อ จุดละประมาณ 6 - 800 ขึ้นกับยี่ห้อสายไฟ ส่วน สวิทช์ ปลั๊ก โคมไฟดาวไลท์คุณไปซื้อมาเองดีกว่า
- ค่าปูกระเบื้องแพงมาก เว้นแต่ว่าต้องปูเนี้ยบ ได้ระดับ แนบสนิท ลูบดูไม่เจอรอยต่อเลย
และรายการอื่นๆ อีกด้วย
สรุปว่าแพงมาก ลองหาเจ้าอื่นมาตีราคาเปรียบเทียบครับ
แสดงความคิดเห็น
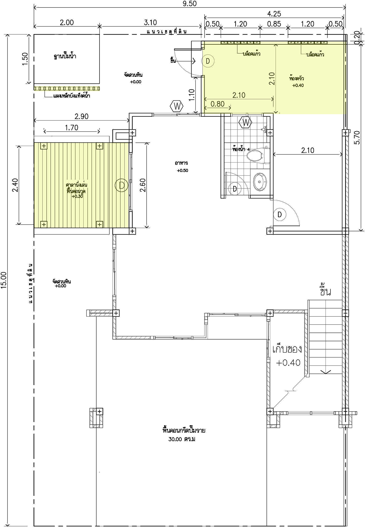
รบกวนพี่ๆน้องๆ ดูราคาต่อเติมครัวนอก ทำห้องน้ำชั้นสอง ศาลาไม้ระแนงข้างบ้าน ฯลฯ ให้ผมหน่อยครับ
เป็นช่างในเครือของโครงการบ้านเองครับ
รายละเอียดต่างๆตามรูปที่แนบมาครับ
ขอบพระคุณล่วงหน้านะครับ
สีเหลืองอ่อนๆ ในรูปคือส่วนที่ต่อเติมนะครับ
ห้องน้ำชั้นสองจริงๆเป็น 2 ห้องติดกันครับ แต่ผมทุบรวมให้เป็นห้องเดียว